Jon Hunt

Plans & Designs

UK Based Building Surveyor, Office Space Planning and Design. I create 2d and 3d plans, Elevations and Visuals. Using the latest Lidar Scanner to create point cloud data. I can also create Matterport Scans

About

.

Profile Picture

More than 30 years experience using Autocad, this includes creating architectural drawings, space plans, site surveys - including the surveys themselves, creating visuals, presentations, quotes and specifications, working for furniture suppliers, design and build companies, primarily within Offices and Schools. I have over 20 years experience as a commercial space planner.

Other software used: Sketchup, 3d Studio Max, Adobe Photoshop, Illustrator and Indesign (marketing materials), Adobe Dreamweaver (websites) Microsoft Office including Excel and Powerpoint (primarily for creating quotes and presentations).

Fully insured - public liability £2 million, Professional Indemnity £0.5 million

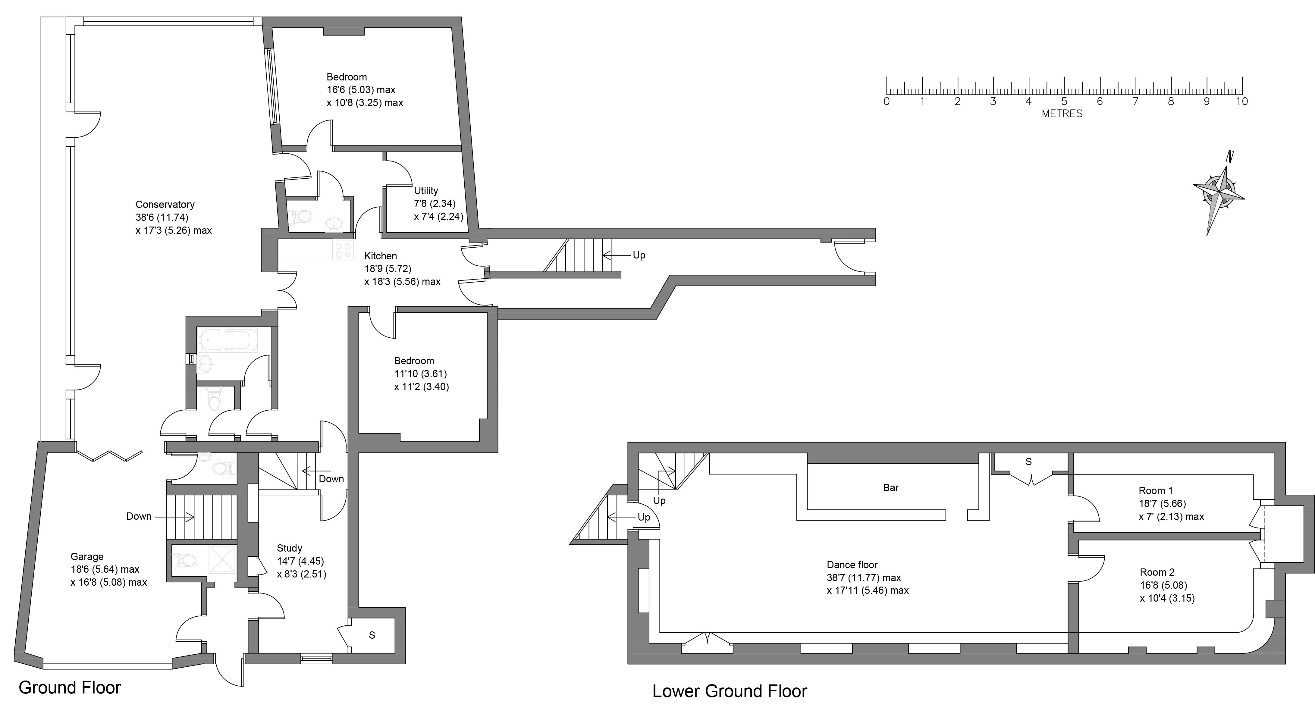
work examples

.

Move over an image for more information.

Services

.

Commercial and residential site surveys, site plans for letting agents, full building surveys, 2d and 3d cad plans, 3d visuals, installation drawings, furniture advice and procurement, converting drawings to and from PDF

Contact

.

Please fill out the form below if you'd like to get in touch, alternatively you can email me or call me, details are just below this form.

Sending...
Your message was sent, thank you!
Address

21 Cranston Way
Crawley Down, West Sussex
RH10 4XX UK

Email

jon@jnhunt.co.uk
info@jnhunt.co.uk

Mobile

Phone: (+44) 07525 456730